Studentenkamers
De brandveiligheid in studenkamers is heel belangrijk want, studenten zijn niet altijd even verstandig bezig met hun eigen veiligheid. Maar ook exploitanten zien niet altijd de noodzaak om verantwoording te nemen. Daarnaast is de regelgeving ook niet voor iedereen duidelijk. De gedachte “we doen in elke kamer wel een batterijrookmelder dan zal het wel goed zijn” is zeker niet voldoende.

Studentenhuisvesting valt volgens bouwbesluit 2012 onder “woonfunctie” soms “kamergewijs verhuur”.
De overheid heeft een infoblad voor studentenhuisvesting beschikbaar. Let op, dit blad is uit 2013 en hierin is nog geen rekening gehouden met aanvullende eisen m.b.t. batterij rookmelders voor bestaande woningen en sturing van deuren bij Corridor woningen.

In de regelgeving is vooral aandacht voor het beperken van de omvang van een brand. Terwijl we weten dat zichtbare en onzichtbare rook veel meer slachtoffers maakt. Als alleen kamers voorzien zijn van rookmelders zal een brand in die kamer wel de studenten in die kamer wel alarmeren, maar als de rook zich verspreid door de gangen, kan het gebeuren dat studenten in andere kamers pas gealarmeerd worden als de gang al vol rook staat en vluchten niet meer mogelijk is. En dan praten we nog niet over de onzichtbare rook in de vorm van CO, de onzichtbare sluipmoordenaar. Het is daarom verstandig om te bedenken dat het bouwbesluit het absolute minimum voorschrijft, maar dat u goed over de situatie moet kijken.
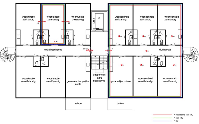
Als toelichting:
Het hele gebouw is een woongebouw.
1,2,3,6,7,8 zijn zelfstandig.
4,5,9,10 zijn onzelfstandig.
De eigenaar kan bepalen hoe hij dit aanpakt m.b.t. woonfucties en wooneenheden.


Om de regels goed te kunnen begrijpen zullen we een aantal begrippen moeten snappen, we geven daarom een toelichting op de begrippen uit eerder genoemde infoblad.
Pagina 10: (infoblad voor studentenhuisvesting )
Zelfstandige woonfunctie: aparte woning met eigen toilet, keuken, douche enz.
Zelfstandige wooneenheid: Deel van een gebouw met eigen toilet, keuken, douche enz.
Onzelfstandige woonfunctie; aparte woning, maar bepaalde voorzieningen zijn ergens anders.
Onzelfstandige Wooneenheid: Deel van een gebouw, maar bepaalde voorzieningen zijn op een andere plaats in het gebouw.
In dit voorbeeld kiest de eigenaar om links 5 zelfstandige woonfuncties toe te passen (1 tm 5)
en rechts 1 woonfunctie met 5 wooneenheden. (6 tm 10)
Hieronder het overzicht per kamer



Op dit moment moeten we kijken naar de begrippen Brandcompartiment en subbrandcompartiment. En ook naar regels die na het opstellen van de brochure van toepassing zijn geworden.
Een brandcompartiment is een deel van een gebouw waarbij bij een brand deze 60 minuten binnen dat deel blijft.
Een subbrandcompartiment is een onderdeel van het brandcompartiment, waarbij de brand 30 minuten binnen dat deel zal blijven, maar wat ook de verspreiding van rook tegengaat.
Een beschermd subbrandcompartiment geeft meer bescherming dan het subbrandcompartiment en is van toepassing in gebouwen waar geslapen wordt.


Je ziet dat de woonfunctie een brandcompartiment moet zijn. Links is dat dus per woonfunctie, dus 5 totaal, rechts is dat maar 1 voor het totale blok.
Links is men in een brand in een ander brandcompartiment in principe 1 uur veilig. Daarom zijn rookmelders hier niet verplicht. Maar als de rook in de gang komt wordt daardoor wel de vluchtweg geblokkeerd. Vanwege aanvullende eisen zullen de deuren van de woonfunctie links dichtgestuurd moeten worden bij een brand, door bijvoorbeeld een vrijloopdeurdranger, deze moet door een rookdetectie moeten worden aangestuurd. Dit mag vanuit de woning of vanuit de gang.
Rechts is geen brandscheiding tussen de kamers, als ergens een brand onstaat zullen alle bewoners gewaarschuwd moeten worden. Hier is dus branddetectie en alarmering nodig.

Zoals we eerder hebben gezegd geeft het bouwbesluit een minimale eis en zijn studenten niet op alle momenten niet de meest verstandige en risicobewuste bewoners. Vanuit de praktijk adviseren we daarom om niet te kiezen voor 230V of batterijrookmelders, maar voor een Brandmeld- en ontruimingsalarminstallatie. Hiervoor noemen we de volgende redenen:
- Het systeem is onderling gekoppeld en detectie uit 1 kamer kan alarmering in een groot deel van het gebouw activeren.
- Het systeem bewaakt zichzelf, als melders worden verwijderd zal dit gesignaleerd worden.
- Als er een storing is, zal dit gesignaleerd worden.
- Bij een brand kan de brandweer snel de locatie kunnen achterhalen en dus ook snel gericht handelen.
- Het systeem kan de sturing van de vrijloopdrangers verzorgen..
- Andere acties zoals het aansturen van liften, vrijgeven van deuren e.d. kunnen worden verzorgd.
- De zichtbare aanwezigheid van de installatie zal zorgen dat bewoners meer bewust zijn van de brandveiligheid.
- Als er een calamiteit is, kan de eigenaar of exploitant aantonen dat hij zijn verantwoording voor de veiligheid heeft genomen.

Behalve de bouwkundige en installatietechnische, kunnen organisatorische zaken ook al veel bijdragen aan de veiligheid en het veiligheidsbewustzijn. Hieronder enkele links naar nuttige documenten en informatie:
Hoe brandveilig is jouw studentenhuis? 5 tips
8 tips voor een veilig studentenhuis
Veiligheidsregio Utrecht; brandveiligheid in studentenhuizen
